K2.KONZEPT

GESTALTEN. WAS. BLEIBT.

K2.Konzept ist ein kleines, vielseitiges Architekturbüro, in dem Bauprojekte in unterschiedlichsten Größenordnungen betreut werden – vom Einfamilienhaus über Doppelhäuser bis hin zu größeren Mehrfamilienwohnanlagen. Auch kleinere Gewerbebauten gehören zu unserem Leistungsportfolio.

 

Wir bieten umfassende architektonische Leistungen an:


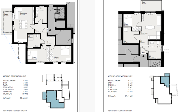
Entwurf, Umplanung, Genehmigungsplanung, Visualisierungen, Wohn- und Nutzflächenberechnungen, Exposés für die Vermarktung sowie präzise Aufmaße Ihrer Bestandsimmobilie.

ENTWURF & UMPLANUNG

Kreative Entwürfe, die Ihre Wünsche und Anforderungen perfekt widerspiegeln.

GENEHMIGUNG

Wir kümmern uns um alle notwendigen Unterlagen im Genehmigungsprozess

VISUALISIERUNG

Realistische 3D-Visualisierungen, die Ihre Ideen lebendig werden lassen.

IMPRESSIONEN.

KONTAKT.

Ich bin damit einverstanden, dass diese Daten zum Zwecke der Kontaktaufnahme gespeichert und verarbeitet werden. Mir ist bekannt, dass ich meine Einwilligung jederzeit widerrufen kann.*

Bitte füllen Sie alle erforderlichen Felder aus.
Nachricht wurde erfolgreich gesendet

Wir benötigen Ihre Zustimmung zum Laden der Übersetzungen

Wir nutzen einen Drittanbieter-Service, um den Inhalt der Website zu übersetzen, der möglicherweise Daten über Ihre Aktivitäten sammelt. Bitte überprüfen Sie die Details in der Datenschutzerklärung und akzeptieren Sie den Dienst, um die Übersetzungen zu sehen.